Product Series
推薦產品
河南華東起重機械設備公司
服務熱線:400 086 9590
公司:河南華東起重機械設備有限公司
聯系人:賈經理
聯系電話:13903802779
地址:河南新鄉市封丘縣起重機工業園區
當前位置: 起重機 > 起重機文章
MG型通用門式起重機技術參數
時間:2024-05-27來源:起重機廠家瀏覽次數:1
雙梁門式起重機產品介紹:
MG型通用門式起重機(雙梁吊鉤門式起重機) 有橋架、大車運行機構、小車、電器設備等組成。橋架采用箱型雙梁焊接結構,大車運行機構采用分別驅動,全部機構均在操縱室操縱。
MG型雙梁吊鉤門式起重機適用于露天倉庫、料場、鐵路貨站、港口碼頭等裝卸搬運。還可以配以多種專用鉤具進行多種特殊作業。
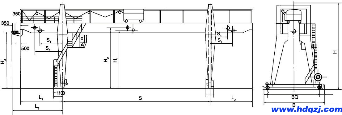
雙梁吊鉤門式起重機結構簡圖:

MG型通用門式起重機參數表



上一篇:MH型單梁門式起重機技術參數
下一篇:MHZ型抓斗門式起重機技術參數
推薦文章:




















