Product Series
推薦產品
河南華東起重機械設備公司
服務熱線:400 086 9590
公司:河南華東起重機械設備有限公司
聯系人:賈經理
聯系電話:13903802779
地址:河南新鄉市封丘縣起重機工業園區
當前位置: 起重機 > 起重機文章
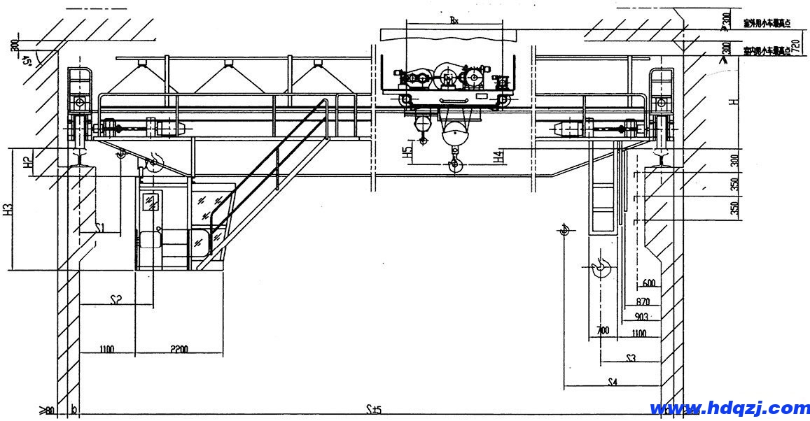
QD型雙梁橋式起重機
時間:2024-05-24來源:起重機廠家瀏覽次數:1
雙梁橋式起重機產品介紹:
QD型雙梁吊鉤橋式起重機由箱形橋架,大車運行機構、小車、電氣設備四部分構成。全部機構均在操作室內操縱。露天使用時,帶有防雨設備。
雙梁橋式起重機訂購說明:
采購雙梁吊鉤橋式起重機請告知以下數據,以便我們能很快確認您的需求!
1、雙梁吊鉤橋式起重機的起重量;
2、跨度(軌道中心至軌道中心);
3、起升高度(鉤中心到地面高度);
4、需要道軌和電纜嗎?(請提供運行長度);
5、其他特殊要求如果您有更多的詳細資料,請告知,我們會準確的給出價格!
雙梁橋式起重機結構圖


雙梁橋式起重機參數表


上一篇:LH型葫蘆雙梁起重機
下一篇:QC型電磁橋式起重機技術參數
推薦文章:




















