Product Series
推薦產品
河南華東起重機械設備公司
服務熱線:400 086 9590
公司:河南華東起重機械設備有限公司
聯系人:賈經理
聯系電話:13903802779
地址:河南新鄉市封丘縣起重機工業園區
當前位置: 起重機 > 起重機文章
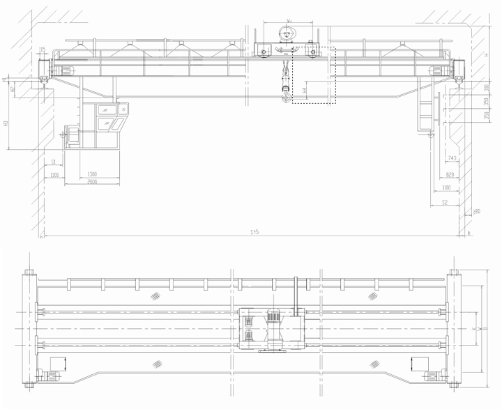
LH型電動葫蘆橋式起重機
時間:2024-05-10來源:起重機廠家瀏覽次數:1
產品詳情

產品特點
LH型電動葫蘆橋式起重機以葫蘆作為起升機構,結構簡單,安全性能好,維護方便,有效提高起吊高度。適用于機械制造、注塑、模具加工、鋼材、石材等場所。
產品特性
LH型電動葫蘆梁式起重機是電動葫蘆橋式起重機(簡稱"葫雙"), 以電動葫蘆作為起升機構,橋架采用半偏軌箱形梁,電纜導電,主梁與端梁用可拆式螺栓聯接。"葫雙"自重輕、體積小、結構簡單、成組性好、經濟實用。安裝、使用、維修、運輸方便。適用于輕、中級制度的機械車間、倉庫、料場、水電站的檢修、裝配和裝卸工作。"葫雙"外形尺寸小,輪壓較低,價格低廉,是一種新型的橋式起重機。
LH型電動葫蘆橋式起重機LH32/10t參數
| LH型電動葫蘆橋式起重機LH32/10t參數 | ||||||||||
| 額定起重量 | t | 32/10 | ||||||||
| 操縱形式 | min | 地面操縱:操縱室 | ||||||||
| 速度 | 主構起升 | 3(0.3/3) | ||||||||
| 副鉤起升 | 7(0.7/7) | |||||||||
| 小車運行 | 20 | |||||||||
| 大車運行 | 地面 | 20;30 | ||||||||
| 操縱室 | 30;40 | |||||||||
| 電動機 | 主構起升 | 型號/kw | ZD*62-6/18.5,ZDS12.2/18.5(主機6級電機) | |||||||
| 副鉤起升 | ZD151-4/13(ZDSI.5/13) | |||||||||
| 小車運行 | ZDY131S-4/2.2*2 | |||||||||
| 大車運行 | 地面 | ZDY131S-4/2.2*2 ZDY131-4/3*2 | ||||||||
| 操縱室 | ZDRII2L2-4/3.0*2 ZDRI25-4/4.6*2 | |||||||||
| 電動葫蘆 | WHI64;CD1(MD1) | |||||||||
| 起升高度 | m | 9;12;16;24 | ||||||||
| 工作制度 | A3-A5 | |||||||||
| 電源 | 3-phaseA.C.三相交流;50HZ;380V | |||||||||
| 薦用大車道軌 | 43kg/m | |||||||||
| 跨度 | m | 7.5 | 10.5 | 13.5 | 16.5 | 19.5 | 22.5 | 25.5 | ||
| 起重機zui大輪壓 | KN | 167 | 184 | 196 | 206 | 215 | 224 | 233 | ||
| 自重 | 地面操縱 | kg | 12530 | 14660 | 16360 | 18870 | 21650 | 24260 | 27060 | |
| 操縱室 | kg | 13430 | 15530 | 17260 | 19770 | 22550 | 25160 | 27960 | ||
| 基本尺寸 | B | mm | 2600~4500 | |||||||
| W | mm | 2000-4000 | ||||||||
| We | mm | 2200-2900 | ||||||||
| K | mm | 1600-2500 | ||||||||
| H | mm | 1900 | ||||||||
| H1 | mm | 765 | ||||||||
| H2 | mm | 170 | 270 | 370 | 470 | 570 | 670 | 770 | ||
| H3 | mm | 2395 | 2495 | 2595 | 2695 | 2795 | 2895 | 2995 | ||
| H4 | mm | -700 | ||||||||
| b | mm | 230 | ||||||||
| S1 | mm | 1100 | ||||||||
| S2 | mm | 1600 | ||||||||
產品參數

產品示意圖





















