推薦產品
河南華東起重機械設備公司
服務熱線:400 086 9590
公司:河南華東起重機械設備有限公司
聯系人:賈經理
聯系電話:13903802779
地址:河南新鄉市封丘縣起重機工業園區
當前位置: 起重機 > 技術資料 > 起重機百科
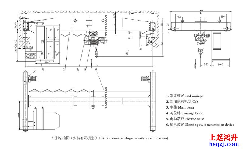
2噸單梁起重機技術參數LDA2噸行車外形尺寸結構圖
時間:2021-09-27來源:起重機廠家瀏覽次數:1279

LDA型2噸單梁起重機圖片
2噸單梁起重機技術參數表:
|
起重量
|
t
|
2噸行車
|
|||||||||
|
操縱形式
|
地面操縱
|
操作室操縱
|
|||||||||
|
運行機構
|
運動速度
|
m/min
|
20m/min
|
30m/min
|
45m/min
|
45m/min
|
60m/min
|
75m/min
|
|||
|
減速比
|
58.78
|
39.38
|
26.36
|
26.36
|
19.37
|
|
|||||
|
電機型號
|
ZDY21-4
|
ZDR12-4
|
|||||||||
|
功率
|
kW |
2*0.8kW
|
2*1.5kW
|
||||||||
|
轉速
|
r/min |
1380r/min
|
|||||||||
|
起升機構
|
電動葫蘆型號
|
CDI型電動葫蘆
|
MDI型電動葫蘆
|
||||||||
|
起升速度
|
m/min
|
8m/min
|
8/0.8m/min
|
||||||||
|
運行長度
|
m
|
6米、9米、12米、18米、24米、30米
|
|||||||||
|
運行速度
|
m/min
|
20m/min,30m/min
|
|||||||||
| 電機型號 |
錐形鼠籠形
|
||||||||||
|
工作制度
|
A3-A5
|
||||||||||
|
電源
|
三相50HZ 380V
|
||||||||||
|
車輪直徑
|
mm
|
220mm
|
|||||||||
|
常用軌道
|
kg/m
|
18kg/m,24kg/m
|
|||||||||
|
起重量
|
t
|
2噸單梁行車
|
|||||||||
|
跨度S
|
m
|
7.5-11噸
|
11.5-12噸 |
12.5-14噸
|
14.5-17噸
|
19.5噸
|
22.5噸
|
||||
|
總重
|
地操
|
t
|
1.78-2.10噸
|
2.21-2.26噸 |
2.35-2.50噸
|
2.63-2.91噸
|
3.85噸
|
4.67噸
|
|||
|
室操
|
t
|
2.18-2.50噸
|
2.61-2.66噸 |
2.75-2.90噸
|
3.03-3.31噸
|
4.25噸
|
5.07噸
|
||||
|
輪壓
|
地操
|
t
|
1.64-1.72噸
|
1.75-1.76噸 |
1.79-1.83噸
|
1.87-1.93噸
|
2.18噸
|
2.38噸
|
|||
|
室操
|
1.94-2.02噸
|
2.05-2.06噸 |
2.09-2.13噸
|
2.17-2.23噸
|
2.48噸
|
2.68噸
|
|||||
|
基本尺寸
|
h1
|
mm
|
550mm
|
595mm |
700mm
|
800mm
|
900mm
|
||||
|
B
|
2500mm | 3000mm |
3000mm
|
||||||||
|
K
|
2000mm | 2500mm |
3000mm
|
||||||||
|
L1
|
871.5mm
|
||||||||||
|
L2
|
1292.5mm
|
||||||||||
|
H
|
1100mm | 1105mm |
1110mm
|
1115mm
|
1120mm
|
||||||
|
H1
|
490mm
|
580mm |
660mm
|
785mm
|
|||||||

LDA型2噸行車外形結構圖
LDA型單梁行車|LDA型單梁行吊
-
21
2025-08
關于架橋機的電氣系統、200噸架橋機施工工藝
關于架橋機的電氣系統 廠家為了使電氣控制系統和液壓系統協同工作,需要將它們進行有機結合。具體來說,液壓系統的動作主要由電氣控制系統來控制。電氣控制系統通過控制柜中的電氣元件和電子設備,向液壓系統發送指令,控制液壓泵的運行和液壓閥的開啟或關閉,從而改變液壓系統中的液壓油的流向和壓力,實現機械設備的運動。 以起重機的升降為例,當操作員需要將起重機升起時,他會操作控制柜中的控制按鈕。...詳細
-
14
2025-08
架橋機的安全技術要點介紹
架橋機的安全技術要點介紹:1、架橋機安裝拆除屬于超過規模、危險性較大的工程,需編制專項施工方案,并論證。2、拼裝工藝流程為:施工準備→安放前支腿、中支腿橫移軌道→安前支腿、中支腿、后支腿→拼裝主梁、導梁、安裝聯系框架→安裝導梁前支腿→安裝起吊天車→液壓、電控系統安裝調試。3、架橋機安裝前應對進場的構件、配件、工機具等進行詳細檢查驗收。4、場地尺寸及地基承載力應滿足架橋機安裝及試運荷載的要求;場地平...詳細
-
12
2025-08
架橋機的檢測方案、橋機運行參數控制
架橋機的檢測方案 1、對結構主梁的檢測 架橋機結構主梁對減輕其自重,減少風阻力有著重要的意義,一般由三個或者五個等長度焊制成的桁架組裝連接。相關工作人員可以根據塔式起重機起重臂的檢測方法,對主梁各段連結銷軸逐個檢查,確認是否達到緊密連結; 2、對起升機構和運行機構的檢測 架橋機在形式結構和起升方式上都與雙梁門起重機相似,但是兩者的不同就是有兩臺du立的提升小車機構。在對每個機構的提升制動和...詳細
-
07
2025-08
如何消除架橋機的電路故障、900噸架橋機失靈處理方法
如何消除架橋機的電路故障 一、檢查電源 s先,檢查架橋機的電源是否正常。如果電源出現故障,可能會導致電路故障。檢查電源插頭、電源線以及電源開關是否正常工作。如果發現異常,及時更換或修復。 二、檢查線路連接 檢查架橋機的線路連接是否良好。如果線路連接不良,可能會導致電路故障。檢查線路的接口、插頭以及電線是否松動或破損。如果發現異常,及時緊固或更換。...詳細
-
03
2025-08
單梁式架橋機額定起重量與工作級別解析
單梁式架橋機額定起重量與工作級別解析單梁式架橋機的額定起重量與工作級別是衡量其承載能力和適用性的核心指標,直接影響橋梁架設的安全性和效率。額定起重量指架橋機在標準工況下可穩定吊裝的z大重量,而工作級別則反映其載荷頻率和使用強度,兩者需根據工程需求和結構特性綜合設計。目前主流單梁式架橋機的額定起重量覆蓋范圍廣,從 130 噸到 1000 噸不等。箱梁式結構因閉合截面抗扭剛度高,通常適配較大起重量,例...詳細
-
03
2025-08
單梁式架橋機主梁跨度與長度設計要點解析
單梁式架橋機主梁跨度與長度設計要點解析單梁式架橋機的主梁跨度與長度是決定其施工能力的核心參數,直接影響橋梁架設的效率和安全性。主梁跨度指架橋機能夠覆蓋的兩橋墩間z大距離,而長度則涉及主梁整體結構尺寸,兩者需根據工程需求和力學性能綜合設計。箱梁式主梁的跨度通常在 20-60 米之間,典型案例如 JQ1000 架橋機可架設 40 米高鐵箱梁,其主梁采用高強度鋼材設計,總長度達 116 米,通過低位過隧...詳細




















